
Asansör Projesi
Asansör projelendirme ve danışmanlıkta uzman çözümler sunuyoruz.
3D Asansör Projesi
Asansör avan proje çizimi ve uygulama projesi ile belediye ve muayene onay süreçlerinizi kolaylaştırıyoruz.


Asansör Avan & Uygulama Projesi


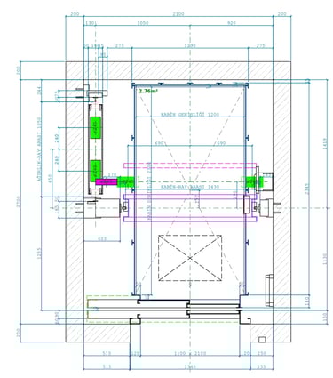
Asansör Yatay Kesit Kuyu Projesi
Asansör montajınıza başlamadan önce kuyu yatay kesit projenizi çizdirin, montajınız sorunsuz geçsin.


Montajını yapmak istediğiniz asansörün birebir aynısını modelliyoruz.
Etkiliyeci teklifler için 3 boyutlu asansör projenizi çizdirin.
Online Asansör Proje Ölçü Formu

TSE-HYB Yenileme


Asansör firmalarına TSE HYB belgelerini yenileme hizmeti sunuyoruz, süreç boyunca yanınızdayız.
İhtiyacınız olan;
İşyeri Topraklama Raporu
Cihaz Kalibrasyon Hizmeti
Marka Tescil Belgesi
Mesleki Sorumluluk ve İşyeri Sorumluluk Sigortası
İSG Belgeleri
TS 12255 , TS12361 VE TS EN 13015 + A1 danışmanlık hizmetlerini sağlıyoruz.
Yeni açılacak olan asansör firmalarına tüm aşamalarda danışmanlık hizmeti sunuyor ve sorunsuz bir şekilde firma açılışı sağlıyoruz.
Yeni Asansör Firması Açılışı


İletişim
bnmmuhendislik@gmail.com
0535 815 91 09
© 2025. All rights reserved.
Zafer mah. 104 sk. No:50 D:2 Efeler/Aydın
BNM Mühendislik Danışmanlik San. ve Tic. Ltd. Şti.
