Hizmetlerimiz

TSE-HYB belgesi yenileme hizmeti
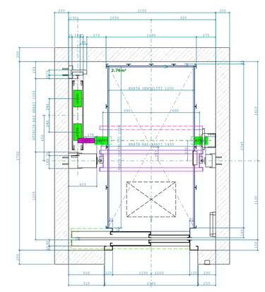
Asansör Avan & Uygulama Projesi
Asansör Yatay Kesit Kuyu Projesi

ASANSÖR PROJESİ

TSE HYB Belgesi

Yeni asansör firması açılışı danışmanlığı

CE Belgelendirme

Modül G , Modül B, Modül E, Modül H1, Modül B+E
Firmanız için tüm montaj yeterlilik belgeleri

Tescil Muayenesi öncesi son kontrol hizmeti

Asansör Montajı Danışmanlığı

3D Asansör Projesi

Deneyimli mühendislerimiz ile montaj sonrası asansörünüzün ilgili standartlara göre son kontrolü gerçekleştirilir ve eksiklikleri tespit edilir. Böylelikle kolayca yeşil etiket almanız sağlanır.

Proje hizmeti verdiğimiz firmalara ücretsiz montaj esnasında uzaktan danışmanlık

Baştan sona montaj danışmanlığı

Bize Ulaşın

Asansör CE belgesi için hemen iletişime geçin.

A professional engineer discussing elevator project plans with a client in an office.
A professional engineer discussing elevator project plans with a client in an office.

Galeri

Asansör projelerimizden ve belgelerimizden kareler

Close-up of detailed elevator technical drawing on a drafting table
Close-up of detailed elevator technical drawing on a drafting table
Engineer reviewing CE certification documents in an office
Engineer reviewing CE certification documents in an office
Modern elevator shaft under construction with workers and safety gear
Modern elevator shaft under construction with workers and safety gear
Completed elevator installation with visible CE compliance label
Completed elevator installation with visible CE compliance label
Consultant explaining elevator project plans to clients in a meeting room
Consultant explaining elevator project plans to clients in a meeting room
Technical team inspecting elevator components for quality assurance
Technical team inspecting elevator components for quality assurance